Request Valuation
Find out how much your property is worth in seconds!
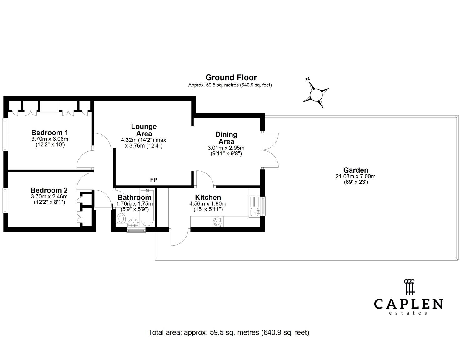
Nestled in the desirable area of Buckhurst Hill, this impressive house on the sought after Princes Road is offered on a Chain Free basis. Spanning 2,936 sqft, the property is ideal for families seeking a generous and well designed living environment.
Entering the house, you are greeted by a grand entrance hall with high ceilings, marble flooring and tasteful décor, immediately setting a high standard. The house boasts three well appointed reception rooms, complete with open fireplaces, oak flooring and picturesque coving, providing ample space for both relaxation and entertaining. Each room creates a warm and inviting atmosphere, making it easy to host gatherings or enjoy quiet evenings at home.
The extended ground floor leads to a well designed open plan kitchen/dining/family room, saturated with natural light from a skylight ceiling. Tiled flooring, a central island with quartz worktops, ample storage, integrated appliances and bi folding doors opening to the south facing garden all contribute to a bright and functional space. This level also benefits from a large utility room equipped for daily needs, along with a convenient kitchenette ideal for larger family occasions.
With five spacious bedrooms, there is plenty of room for family members or guests, ensuring everyone has their own private sanctuary. The property includes two modern bathrooms, thoughtfully designed to meet the demands of a busy household.
In addition to its impressive interior, the house offers off street parking, a valuable asset in this location, as well as direct access to the forest from the fully landscaped south facing rear garden.
The surrounding area is known for excellent amenities, including shops, schools and parks, making it an ideal choice for families and professionals alike. With its generous living space and prime location, this home is sure to attract interest from discerning buyers.
Do not miss the opportunity to acquire a dream property.
Or Call 0203 937 7733
9.35m x 4.93m (30'8" x 16'2" )
4.95m x 3.68m (16'3" x 12'1")
3.45m x 3.30m (11'4" x 10'10")
1.93m x 1.32m (6'4" x 4'4")
3.23m x 2.59m (10'7" x 8'6")
2.92m x 1.65m (9'7" x 5'5")
7.80m x 7.47m (25'7" x 24'6" )
7.21m x 2.44m (23'8" x 8")
4.78m x 4.67m (15'8" x 15'4")
1.93m x 1.93m (6'4" x 6'4")
5.26m x 4.19m (17'3" x 13'9" )
4.78m x 3.66m (15'8" x 12")
3.63m x 3.35m (11'11" x 11")
3.76m x 2.77m (12'4" x 9'1")
3.76m x 1.93m (12'4" x 6'4")
0203 937 7733
Office Address: Caplen Estates Buckhurst Hill – 12 Queens Road, Buckhurst Hill, Essex IG9 5BY
Tel: 0203 937 7733 | info@caplenestates.com
Caplen Estates is a trading name of Dexters London Limited. Registered office:
66 Grosvenor Street, London, England, W1K 3JL. No. 04160511
| CMP Certificate | Lettings Services
Copyright © 2026 All Rights Reserved | Privacy Policy | Money Shield | Complaints Procedure | AML Document
Buckhurst Hill Branch 12 Queens Road, Buckhurst Hill, Essex IG9 5BY
Tel: 0203 937 7733 | info@caplenestates.com
Find out how much your property is worth in seconds!