Request Valuation
Find out how much your property is worth in seconds!
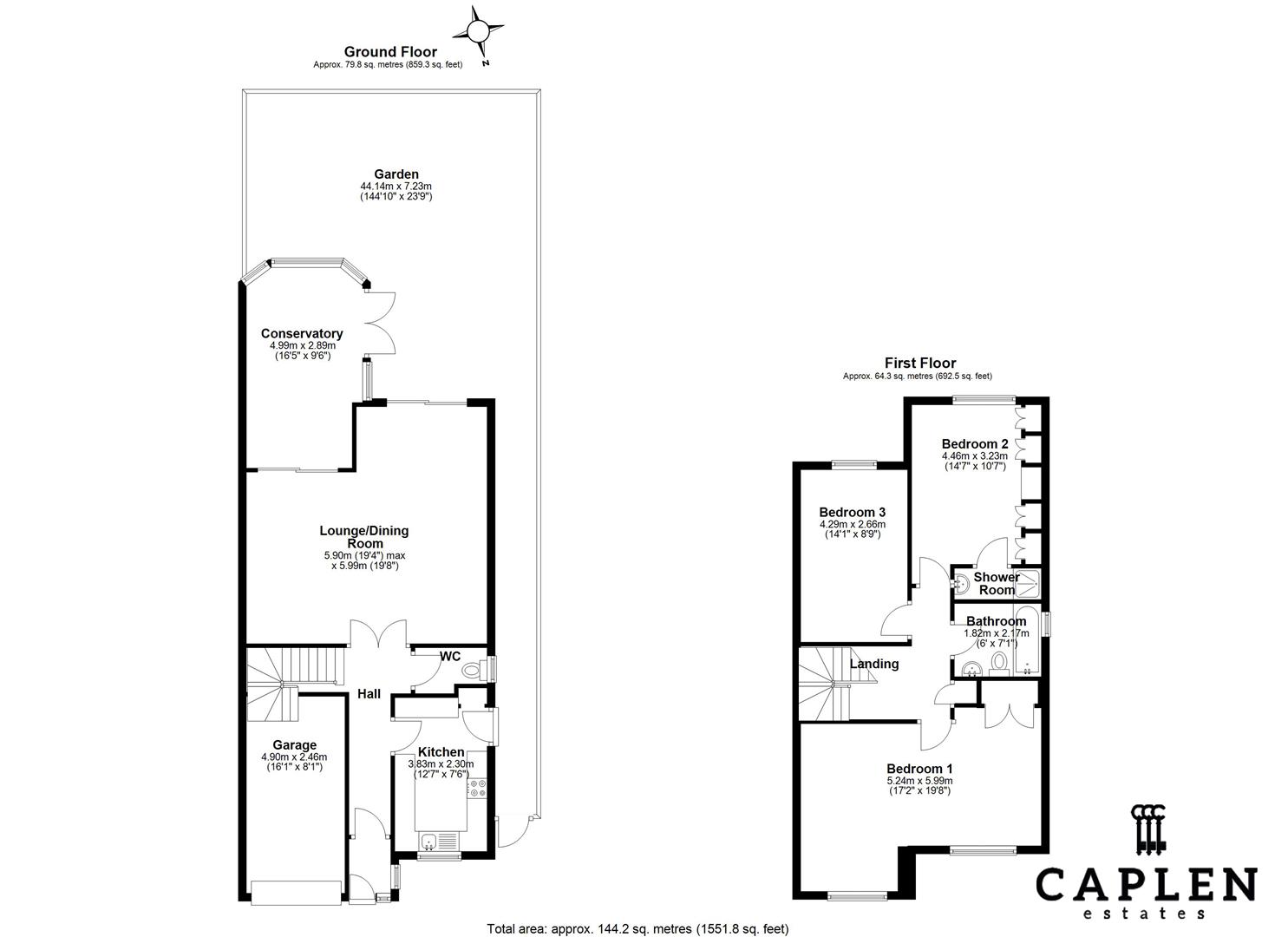
Nestled in the charming area of Buckhurst Hill, this delightful older apartment on Whitehall Lane offers a perfect blend of comfort and convenience. Spanning an impressive 1,052 square feet, the property features two well-proportioned bedrooms, making it an ideal choice for couples or small families seeking a peaceful retreat.
Upon entering, you are welcomed into a spacious reception room that provides a warm and inviting atmosphere, perfect for both relaxation and entertaining guests. The layout is thoughtfully designed, ensuring that every corner of the apartment is utilised effectively. The bathroom is well-appointed, catering to all your daily needs.
One of the standout features of this property is the provision for parking, accommodating up to two vehicles, which is a rare find in this desirable location. This added convenience allows for easy access to the surrounding areas and local amenities.
Buckhurst Hill is known for its vibrant community and excellent transport links, making it easy to explore the wider region. With a variety of shops, restaurants, and parks nearby, residents can enjoy a balanced lifestyle that combines the tranquillity of suburban living with the excitement of urban amenities.
This apartment presents a wonderful opportunity for those looking to settle in a sought-after area, offering both space and practicality. Whether you are a first-time buyer or seeking a rental investment, this property is sure to impress. Do not miss the chance to make this charming apartment your new home.
Or Call 0203 937 7733
15' 3'' x 23' 8'' (4.64m x 7.21m)
13' 5'' x 13' 0'' (4.09m x 3.96m)
7' 3'' x 9' 10'' (2.21m x 2.99m)
12' 1'' x 10' 11'' (3.68m x 3.32m)
5' 10'' x 5' 3'' (1.78m x 1.60m)
10' 5'' x 10' 11'' (3.17m x 3.32m)
5' 10'' x 6' 8'' (1.78m x 2.03m)
0203 937 7733
Office Address: Caplen Estates Buckhurst Hill – 12 Queens Road, Buckhurst Hill, Essex IG9 5BY
Tel: 0203 937 7733 | info@caplenestates.com
Caplen Estates is a trading name of Dexters London Limited. Registered office:
66 Grosvenor Street, London, England, W1K 3JL. No. 04160511
| CMP Certificate | Lettings Services
Copyright © 2026 All Rights Reserved | Privacy Policy | Money Shield | Complaints Procedure | AML Document
Buckhurst Hill Branch 12 Queens Road, Buckhurst Hill, Essex IG9 5BY
Tel: 0203 937 7733 | info@caplenestates.com
Find out how much your property is worth in seconds!